FLAT ROCK MIXED-USE | RESIDENTIAL
LOCATION: Flat Rock, MI
TYPE: New Construction
SERVICES: Architecture, Site Planning, Residential Unit Design
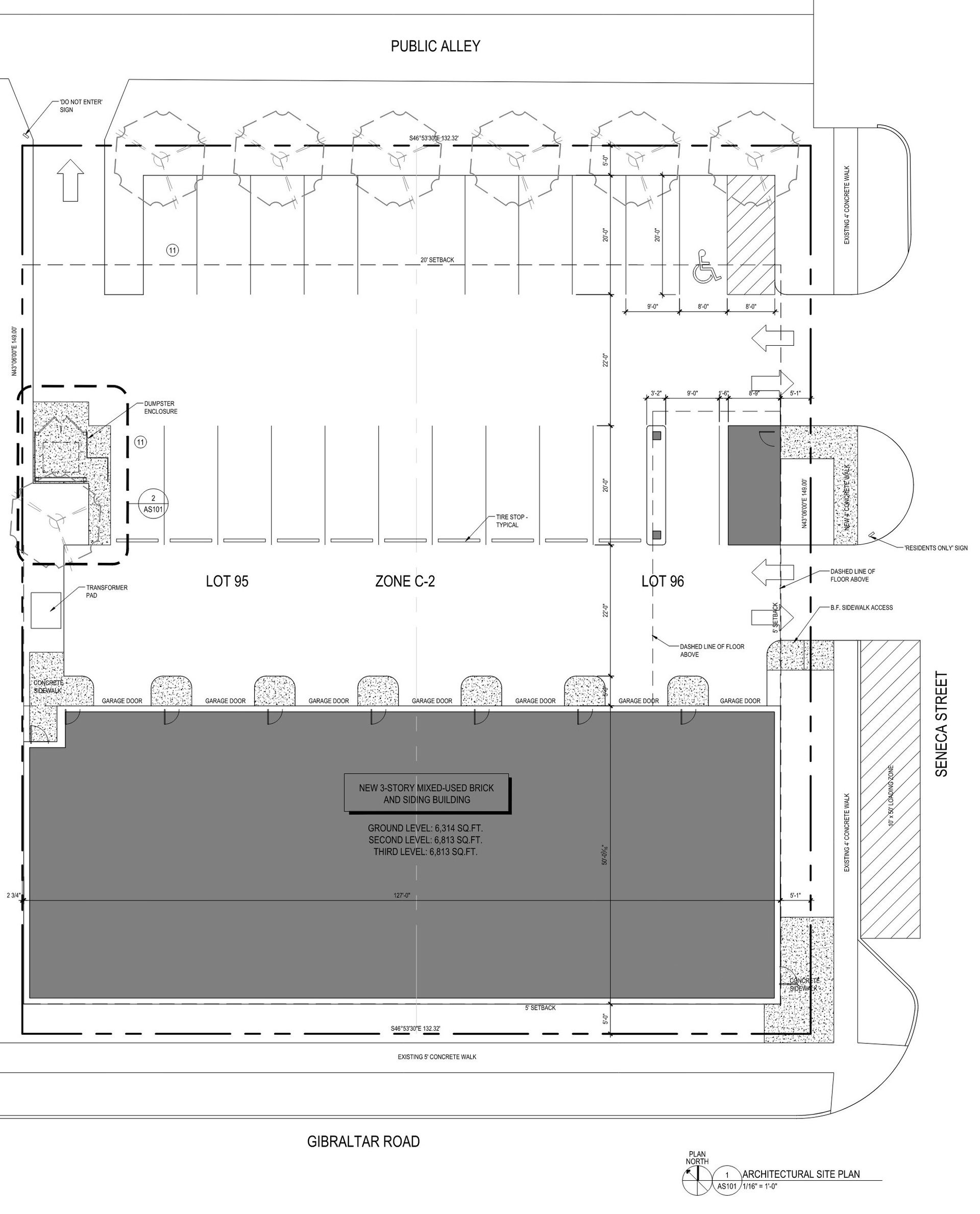
A new 3-story building with ground floor retail and residential on the second and third floors.
LOCATION: Flat Rock, MI
TYPE: New Construction
SERVICES: Architecture, Site Planning, Residential Unit Design
A new 3-story building with ground floor retail and residential on the second and third floors.
All Rights Reserved | M Architects