BOULINEAU | RESIDENTIAL
LOCATION: Cherry Grove, SC
TYPE: New Construction
SIZE: 10,000 SQ FT
SERVICES: Architecture
AFFILIATED FIRM: TAG, inFORM Studio
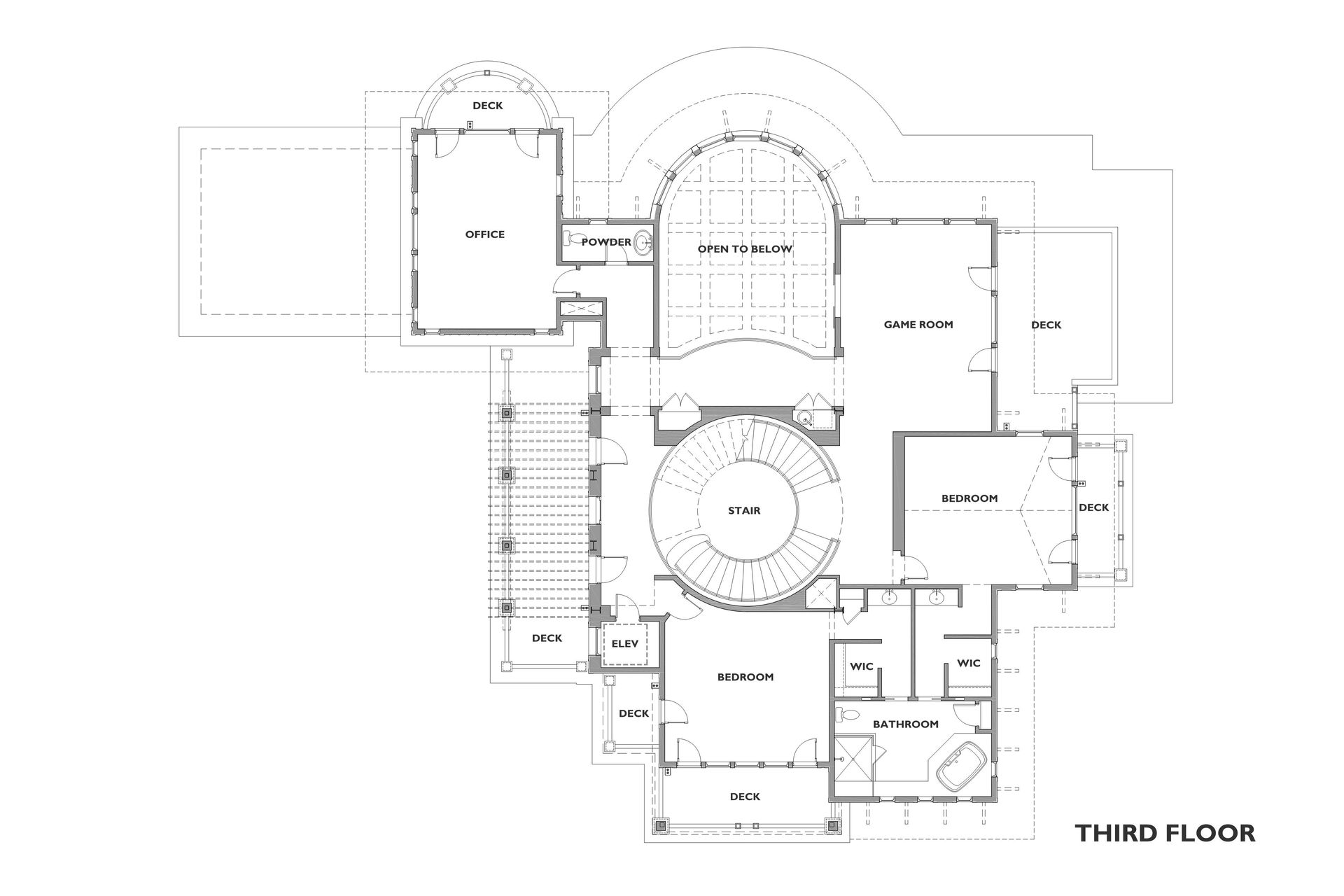
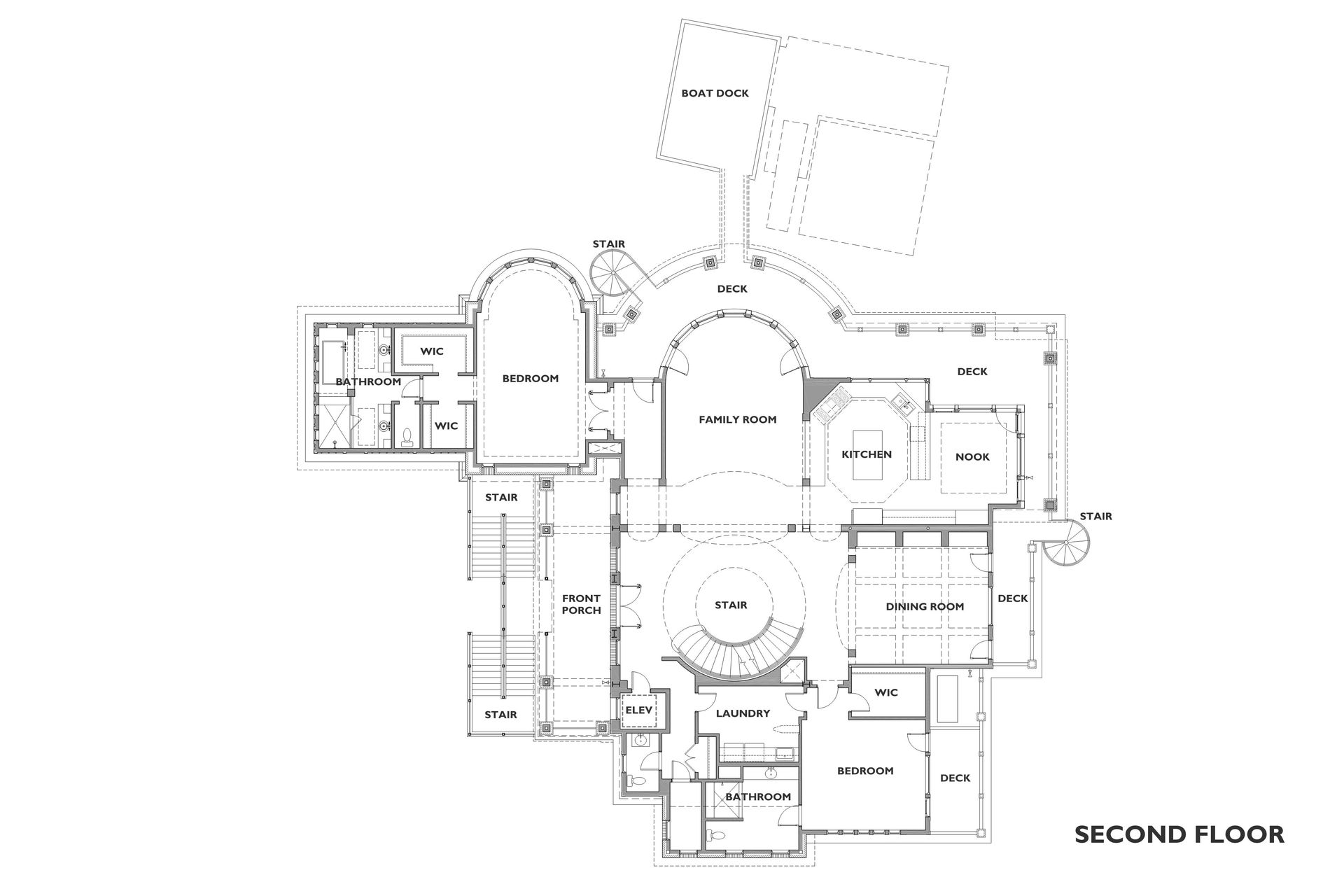
With views of both the marshes and the Atlantic Ocean, this custom home embodies the architectural style of the Grand Strand. A heavy brick plinth anchors the home while board and batten siding with substantial cornice, column, window, and overhang details complete the Low-Country aesthetic. Containing 5 bedrooms across 3 stories, this 4-story home accesses each level with a central, circular stair. Each bedroom has an exterior deck space for views to either the marsh or the ocean, as do almost all rooms in the home.











