BAPTIST CHURCH COURTYARD EXPANSION | COMMERCIAL
LOCATION: Undisclosed
TYPE: Addition and Renovations
SIZE: 30,000 SQ FT
SERVICES: Architecture, Interior Design, Finish Selections
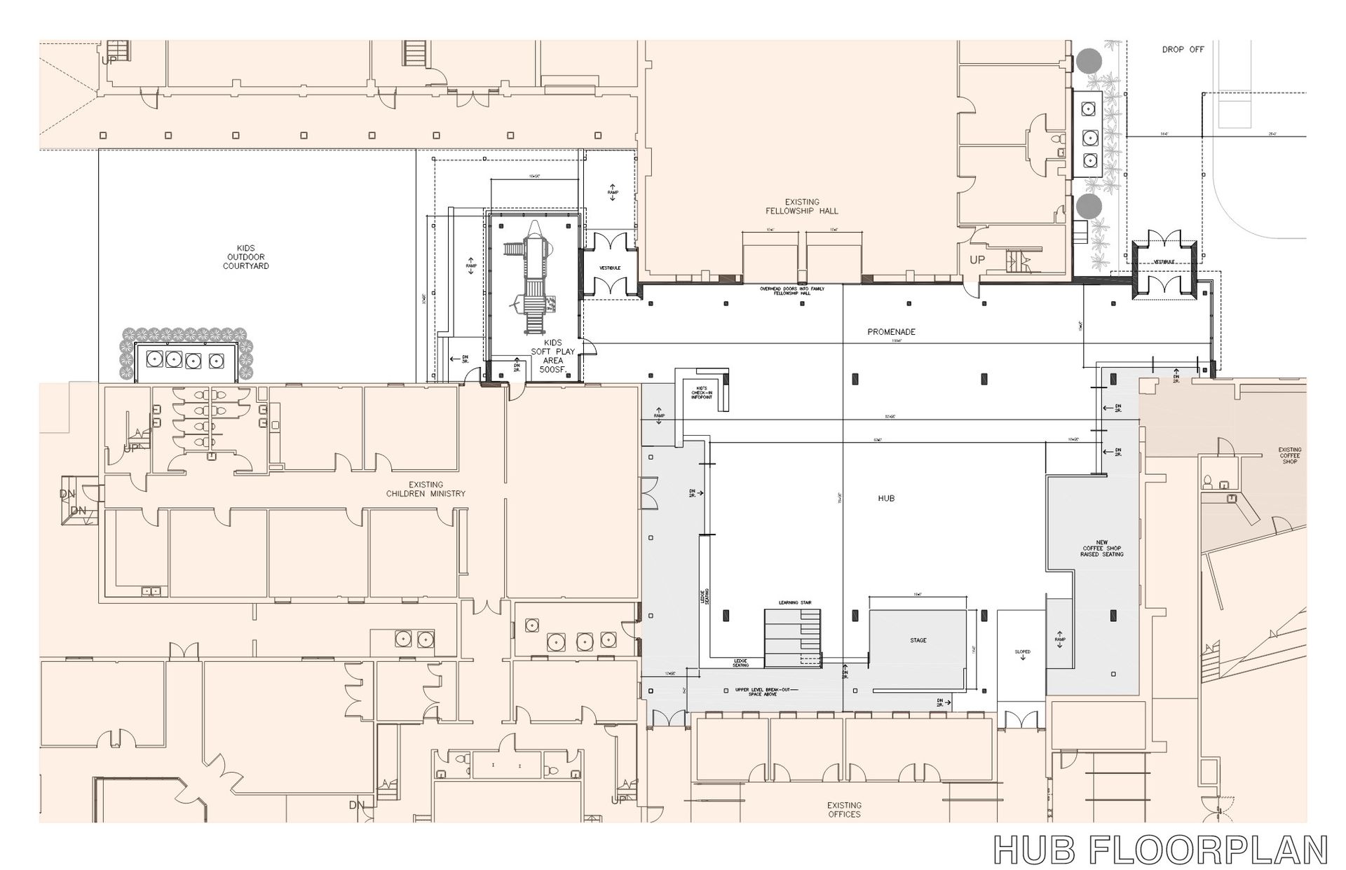
Situated between multiple existing buildings that have a variety of functions for the church, this courtyard space is being adapted into a new multi-purpose hub. The hub houses new entries to the church, a coffee shop, stage area, learning spaces, event spaces, children’s areas, and young adult spaces.













